EMMONS DESIGN
HOME
CONTACT
STUART EMMONS
BUILDING PROJECTS
PLANNING PROJECTS
HOMELESSNESS
HOUSING
NORTH COAST
VISIONS AND PLANS
SCHOOLS
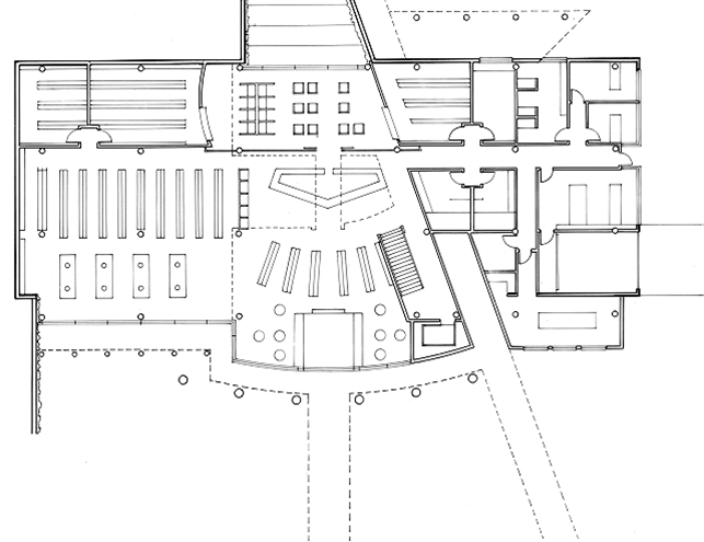
Blacksburg Library Plans
Upper Level
Lower Level