HOME
CONTACT
STUART EMMONS
BUILDING PROJECTS
PLANNING PROJECTS
HOMELESSNESS
HOUSING
NORTH COAST
VISIONS AND PLANS
SCHOOLS
EMMONS DESIGN
Fire One Plans
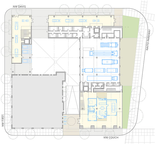
Roof
Green Roof
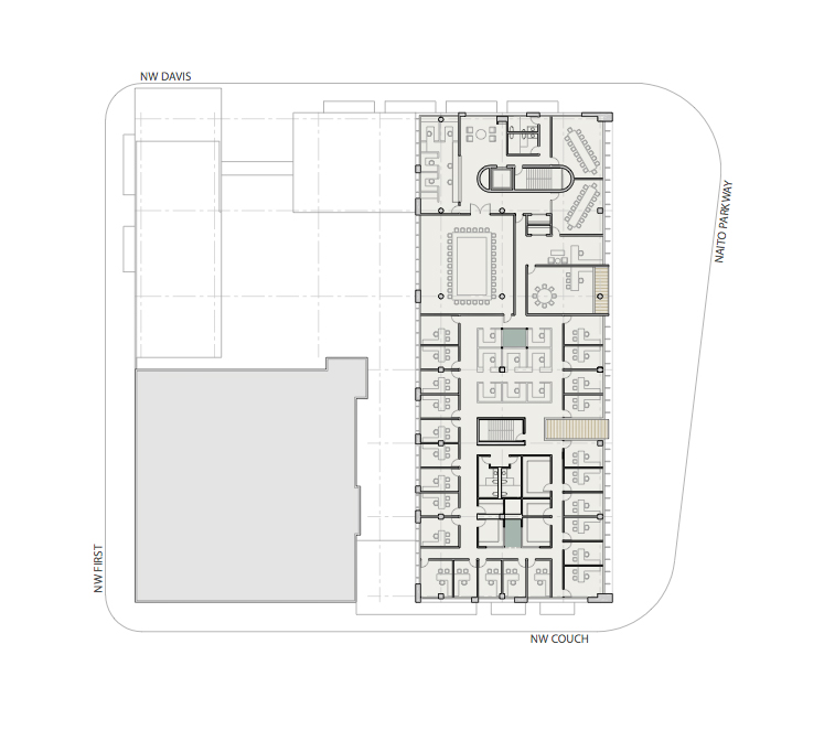
Floor 4
Fire Bureau Offices
Floor 3
Fire Bureau Offices
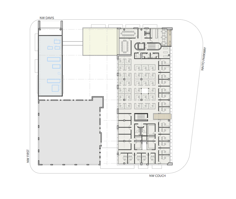
Floor 2
Fire Station 1 Living/Sleeping
Public walkway/overlooks
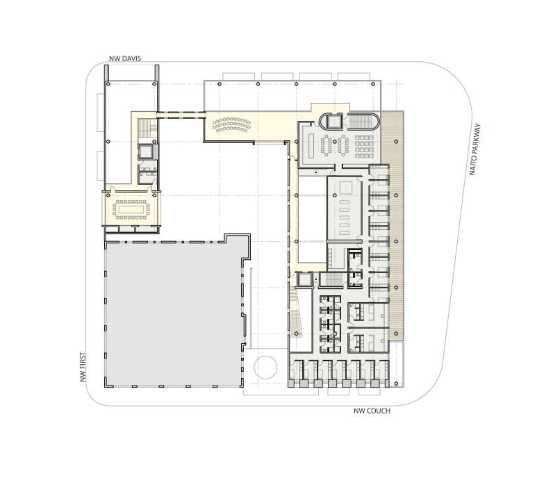
Floor 1
Fire Station 1 Apparatus
Public Walkway
Fire Museum
Floor 0
Underground Parking