EMMONS DESIGN
HOME
CONTACT
STUART EMMONS
BUILDING PROJECTS
PLANNING PROJECTS
HOMELESSNESS
HOUSING
NORTH COAST
VISIONS AND PLANS
SCHOOLS
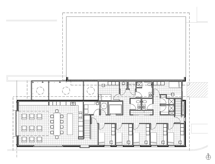
Fire 9 Plans
SECOND FLOOR
APPARATUS BAY BELOW
WATCHROOM BELOW
DAY ROOM
SLEEPING/BATHING
FIRST FLOOR
COMMUNITY ROOM
APPARATUS BAY
WATCHROOM
ENTRY
GALLERY
EXERCISE
POLE